Plan of the Month Click here to explore

Plan# 22201

Contact Us

(Hourly cost for changes - $150/hour)
heart

Plan Description

No description found!

Order Now

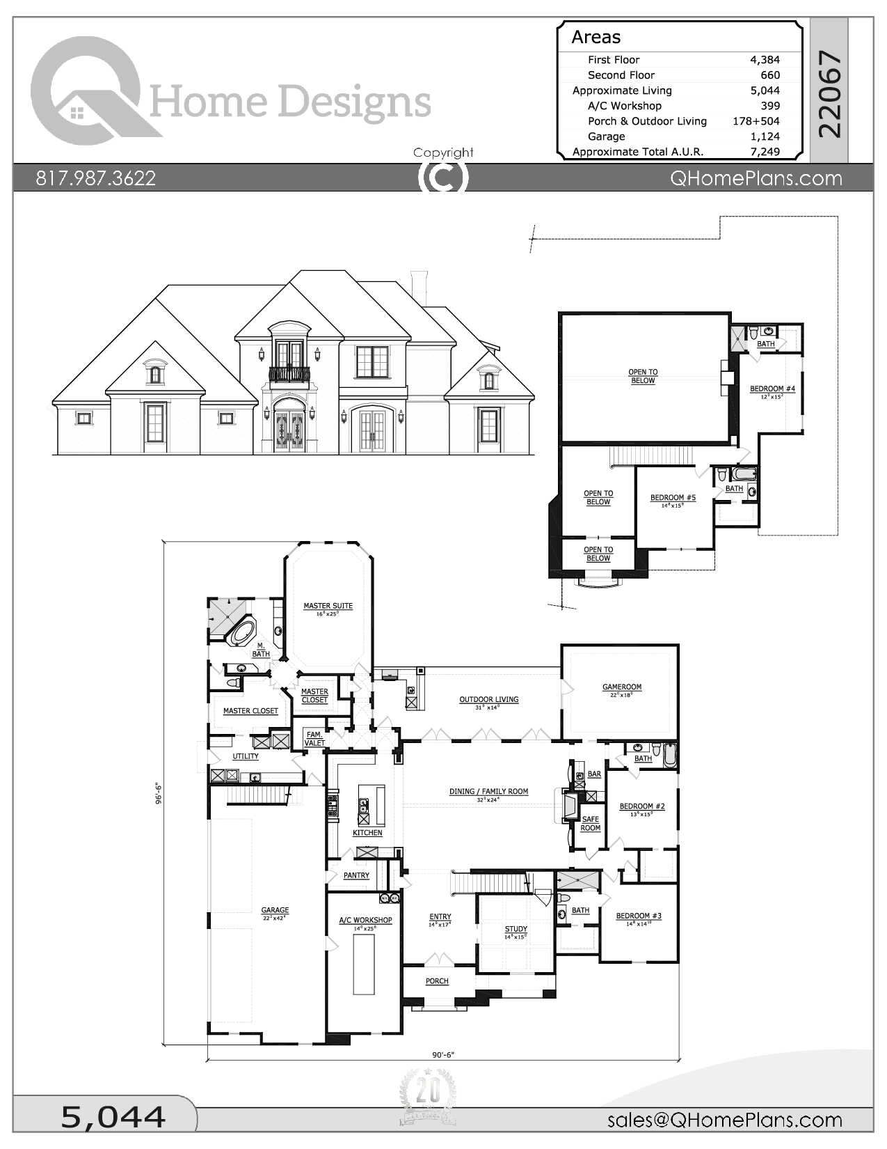
Plan Information

  • img

    Levels

    2
  • img

    House Depth

    83
  • img

    House Width

    83
  • img

    Bedrooms

    4
  • img

    Baths

    4
  • img

    Formal Dining

    1
  • img

    Media/Bonus/Loft/
    Flex/Play/Craft

    1
  • img

    Garages

    3
  • img

    Study

    1
  • img

    2nd Master

    0
  • img

    Total Living SF

    4979
  • img

    Living SF First Floor

    3295
  • img

    Staircase

    1
  • img

    Living SF Second Floor

    1684
  • img

    Formal Living

    1
  • img

    Game Room

    1